|
P41X快速排氣閥原理作用: P41X快速排氣閥用于管路上的較該店或有閉氣的地方和水泵出口處,排除管線內的氣體來疏通管道,達到正常工作。如不裝P41X快速排氣閥,管道隨時出現氣阻,使管道出水容量達不到設計要求;其次,管道在運轉時出現停泵、停電現象會產生負壓引起管道振動或破裂,快速排氣閥能迅速把空氣吸入管內,防止管道振動或破裂。 當水進入管線內時,P41X快速排氣閥浮球停在球桶下部進行大量排氣,當氣排完時,水進入閥內通過球桶把球浮起到關閉,停止排氣。管道在正常運轉時自然會產生少量氣體,這些氣體會集中到管內上部到相當程度,閥內水位下降,浮球順水下降氣體從小孔排出。如出現停泵停電,管內水流空時,隨時會出現負壓,浮球順水下降,打開小孔帶動大孔進行大量補氣,確保管道安全。 P41X快速排氣閥性能特點: 結構簡單,性能穩定,安全可靠。 P41X快速排氣閥技術參數:
P41X快速排氣閥部件材質:
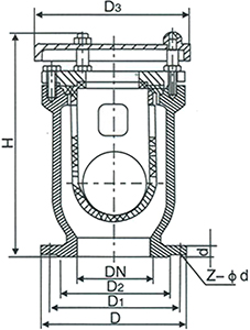
P41X快速排氣閥外形尺寸:
|
-
能夠排除管道中的氣體,減少阻力節約能源。
-
啟閉方便迅速、省力、流體阻力小,可以經常操作。
-
具有體積小,重量輕,性能可靠,配套簡單,流通能力大。
-
排氣閥結構簡單,安裝操作方便。
-
快速排氣閥結構簡單,性能穩定,安全可靠。
-
根據用戶提供的流量、壓力提供選型規格書及控制方案圖。


